ID CP2900823

Spațiu comercial de închiriat | Grigorescu | 220 mp | Compartimentabil

ID CP2900823

1,250 € (negociabil)

Spațiu comercial de închiriat
Grigorescu, Cluj-Napoca
220 mp
1990

Transylvania Imobiliare vă propune spre închiriere un spațiu de birouri generos, situat în cartierul Grigorescu, zona Donath, într-o locație accesibilă și bine conectată.

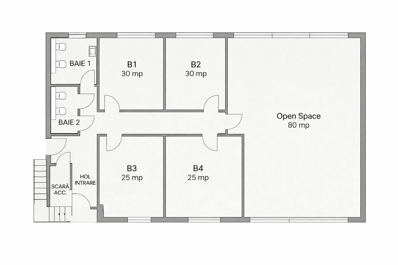
Spațiul dispune de o suprafață utilă de aproximativ 250 mp și este poziționat la etajul 1 al unui imobil cu destinație mixtă.

Compartimentare eficientă:

* 4 birouri individuale (30 mp / 30 mp / 25 mp / 25 mp)

* open space generos (~80 mp)

* 2 grupuri sanitare

* hol de acces + zonă de distribuție

* acces direct din casa scării

Caracteristici:

* compartimentare flexibilă (ideală pentru multiple tipuri de activitate)

* lumină naturală bună (geamuri pe lungimea spațiului)

* posibilitate recompartimentare

* curent trifazic

* spațiu versatil (birouri, sală cursuri, IT, call center etc.)

Flexibilitate în închiriere:

* se poate închiria întreg spațiul

* sau individual, pe birouri, în funcție de necesități

Avantaje:

* zonă liniștită, dar accesibilă

* potrivit atât pentru o singură companie, cât și pentru mai mulți chiriași

* suprafață mare, ușor de adaptat nevoilor

Ideal pentru firme IT, back-office, training, sală de dans sau alte activități comerciale.

Pentru detalii suplimentare sau programarea unei vizionări, nu ezitați să ne contactați!

Donath 132

Id anunt. CP2900823

Citește mai mult

  • Tip imobil
    Centru comercial
  • Etaj
    1
  • Număr camere
    1
  • Număr băi
    3
  • Suprafață utilă
    220 mp
  • Vitrină (m)
    25.0 m
  • Disponibilitate
    Imediat
  • An construcție
    1990
  • Număr etaje clădire
    1

Facilități

Afișare logo pe clădire
Apă
Canalizare
Centrală termică
Curent
Gaz
Vedere panoramică
Vedere spre oraș
Flaviu Baciu - Transylvania Imobiliare
Flaviu Baciu
Co-owner

0748155339


Solicită chiar acum o vizionare
Telefon
Sună acum Solicită vizionare
Necesare:

Site-ul nu poate funcționa corect fără aceste cookie-uri. Vezi cookie-urile

Statistică:

Strângem statistici anonime despre voi, vizitatorii unici, pentru a vă îmbunătăți experiența dumneavoastră. Vezi cookie-urile

Marketing:

Pentru a ne promova mai eficient serviciile noastre, folosim cookies pentru a vă identifica și a vă oferi proprietăți și servicii personalizate. Vezi cookie-urile

Acest site folosește cookies, află detalii. Alege ce tipuri de cookies dorești să permitem: